8.5.1 本节包括混凝土预制桩和混凝土灌注桩低桩承台基础。竖向受压桩按桩身竖向受力情况可分为摩擦型桩和端承型桩。摩擦型桩的桩顶竖向荷载主要由桩侧阻力承受;端承型桩的桩顶竖向荷载主要由桩端阻力承受。
8.5.2 桩基设计应符合下列规定:
1 所有桩基均应进行承载力和桩身强度计算。对预制桩,尚应进行运输、吊装和锤击等过程中的强度和抗裂验算。
2 桩基础沉降验算应符合本规范第8.5.15条的规定。
3 桩基础的抗震承载力验算应符合现行国家标准《建筑抗震设计规范》GB 50011的有关规定。
4 桩基宜选用中、低压缩性土层作桩端持力层。
5 同一结构单元内的桩基,不宜选用压缩性差异较大的土层作桩端持力层,不宜采用部分摩擦桩和部分端承桩。
6 由于欠固结软土、湿陷性土和场地填土的固结,场地大面积堆载、降低地下水位等原因,引起桩周土的沉降大于桩的沉降时,应考虑桩侧负摩擦力对桩基承载力和沉降的影响。
7 对位于坡地、岸边的桩基,应进行桩基的整体稳定验算。桩基应与边坡工程统一规划,同步设计。
8 岩溶地区的桩基,当岩溶上覆土层的稳定性有保证,且桩端持力层承载力及厚度满足要求,可利用上履土层作为桩端持力层。当必须采用嵌岩桩时,应对岩溶进行施工勘察。
9 应考虑桩基施工中挤土效应对桩基及周边环境的影响;在深厚饱和软土中不宜采用大片密集有挤土效应的桩基。
10 应考虑深基坑开挖中,坑底土回弹隆起对桩身受力及桩承载力的影响。
11 桩基设计时,应结合地区经验考虑桩、土、承台的共同工作。
12 在承台及地下室周围的回填中,应满足填土密实度要求。
8.5.3 桩和桩基的构造,应符合下列规定:
1 摩擦型桩的中心距不宜小于桩身直径的3倍;扩底灌注桩的中心距不宜小于扩底直径的1.5倍,当扩底直径大于2m时,桩端净距不宜小于1m。在确定桩距时尚应考虑施工工艺中挤土等效应对邻近桩的影响。
2 扩底灌注桩的扩底直径,不应大于桩身直径的3倍。
3 桩底进入持力层的深度,宜为桩身直径的1倍~3倍。在确定桩底进入持力层深度时,尚应考虑特殊土、岩溶以及震陷液化等影响。嵌岩灌注桩周边嵌入完整和较完整的未风化、微风化、中风化硬质岩体的最小深度,不宜小于0.5m。
4 布置桩位时宜使桩基承载力合力点与竖向永久荷载合力作用点重合。
5 设计使用年限不少于50年时,非腐蚀环境中预制桩的混凝土强度等级不应低于C30,预应力桩不应低于C40,灌注桩的混凝土强度等级不应低于C25;二b类环境及三类及四类、五类微腐蚀环境中不应低于C30;在腐蚀环境中的桩,桩身混凝土的强度等级应符合现行国家标准《混凝土结构设计规范》GB 50010的有关规定。设计使用年限不少于100年的桩,桩身混凝土的强度等级宜适当提高。水下灌注混凝土的桩身混凝土强度等级不宜高于C40。
6 桩身混凝土的材料、最小水泥用量、水灰比、抗渗等级等应符合现行国家标准《混凝土结构设计规范》GB 50010、《工业建筑防腐蚀设计规范》GB 50046及《混凝土结构耐久性设计规范》GB/T 50476的有关规定。
7 桩的主筋配置应经计算确定。预制桩的最小配筋率不宜小于0.8%(锤击沉桩)、0.6%(静压沉桩),预应力桩不宜小于0.5%;灌注桩最小配筋率不宜小于0.2%~0.65%(小直径桩取大值)。桩顶以下3倍~5倍桩身直径范围内,箍筋宜适当加强加密。
8 桩身纵向钢筋配筋长度应符合下列规定:
1)受水平荷载和弯矩较大的桩,配筋长度应通过计算确定;
2)桩基承台下存在淤泥、淤泥质土或液化土层时,配筋长度应穿过淤泥、淤泥质土层或液化土层;
3)坡地岸边的桩、8度及8度以上地震区的桩、抗拔桩、嵌岩端承桩应通长配筋;
4)钻孔灌注桩构造钢筋的长度不宜小于桩长的2/3;桩施工在基坑开挖前完成时,其钢筋长度不宜小于基坑深度的1.5倍。
9 桩身配筋可根据计算结果及施工工艺要求,可沿桩身纵向不均匀配筋。腐蚀环境中的灌注桩主筋直径不宜小于16mm,非腐蚀性环境中灌注桩主筋直径不应小于12mm。
10 桩顶嵌入承台内的长度不应小于50mm。主筋伸入承台内的锚固长度不应小于钢筋直径(HPB235)的30倍和钢筋直径(HRB335和HRB400)的35倍。对于大直径灌注桩,当采用一柱一桩时,可设置承台或将桩和柱直接连接。桩和柱的连接可按本规范第8.2.5条高杯口基础的要求选择截面尺寸和配筋,柱纵筋插入桩身的长度应满足锚固长度的要求。
11 灌注桩主筋混凝土保护层厚度不应小于50mm;预制桩不应小于45mm,预应力管桩不应小于35mm;腐蚀环境中的灌注桩不应小于55mm。
8.5.4 群桩中单桩桩顶竖向力应按下列公式进行计算:
1 轴心竖向力作用下:
Qk=(Fk+Gk)/n (8.5.4-1)
式中:Fk——相应于作用的标准组合时,作用于桩基承台顶面的竖向力(kN);
Gk——桩基承台自重及承台上土自重标准值(kN);
Qk——相应于作用的标准组合时,轴心竖向力作用下任一单桩的竖向力(kN);
n——桩基中的桩数。
2 偏心竖向力作用下:

(8.5.4-2)
式中:Qik——相应于作用的标准组合时,偏心竖向力作用下第i根桩的竖向力(kN);
Mxk、Myk——相应于作用的标准组合时,作用于承台底面通过桩群形心的x、y轴的力矩(kN·m);
xi、yi——第i根桩至桩群形心的y、x轴线的距离(m)。
3 水平力作用下:
Hk
Hik=—— (8.5.4-3)
n
式中:Hk——相应于作用的标准组合时,作用于承台底面的水平力(kN);
Hik——相应于作用的标准组合时,作用于任一单桩的水平力(kN)。
8.5.5 单桩承载力计算应符合下列规定:
1 轴心竖向力作用下:
Qk≤Ra (8.5.5-1)
式中:Ra——单桩竖向承载力特征值(kN)。
2 偏心竖向力作用下,除满足公式(8.5.5-1)外,尚应满足下列要求:
Qikmax≤1.2Ra(8.5.5-2)
3 水平荷载作用下:
Hik≤RHa (8.5.5-3)
式中:RHa——单桩水平承载力特征值(kN)。
8.5.6 单桩竖向承载力特征值的确定应符合下列规定:
1 单桩竖向承载力特征值应通过单桩竖向静载荷试验确定。 在同一条件下的试桩数量,不宜少于总桩数的1%且不应少于3根。单桩的静载荷试验,应按本规范附录Q进行。
2 当桩端持力层为密实砂卵石或其他承载力类似的土层时,对单桩竖向承载力很高的大直径端承型桩,可采用深层平板载荷试验确定桩端土的承载力特征值,试验方法应符合本规范附录D的规定。
3 地基基础设计等级为丙级的建筑物,可采用静力触探及标贯试验参数结合工程经验确定单桩竖向承载力特征值。
4 初步设计时单桩竖向承载力特征值可按下式进行估算:
Ra=qpaAp+upΣqsiali (8.5.6-1)
式中:Ap——桩底端横截面面积(m2);
qpa,qsia——桩端阻力特征值、桩侧阻力特征值(kPa),由当地静载荷试验结果统计分析算得;
up——桩身周边长度(m);
li——第i层岩土的厚度(m)。
5 桩端嵌入完整及较完整的硬质岩中,当桩长较短且入岩较浅时,可按下式估算单桩竖向承载力特征值:
Ra=qpaAp (8.5.6-2)
式中:qpa——桩端岩石承载力特征值(kN)。
6 嵌岩灌注桩桩端以下3倍桩径且不小于5m范围内应无软弱夹层、断裂破碎带和洞穴分布,且在桩底应力扩散范围内应无岩体临空面。当桩端无沉渣时,桩端岩石承载力特征值应根据岩石饱和单轴抗压强度标准值按本规范第5.2.6条确定,或按本规范附录H用岩石地基载荷试验确定。
8.5.7 当作用于桩基上的外力主要为水平力或高层建筑承台下为软弱土层、液化土层时,应根据使用要求对桩顶变位的限制,对桩基的水平承载力进行验算。当外力作用面的桩距较大时,桩基的水平承载力可视为各单桩的水平承载力的总和。当承台侧面的土未经扰动或回填密实时,可计算土抗力的作用。当水平推力较大时,宜设置斜桩。
8.5.8 单桩水平承载力特征值应通过现场水平载荷试验确定。必要时可进行带承台桩的载荷试验。单桩水平载荷试验,应按本规范附录S进行。
8.5.9 当桩基承受拔力时,应对桩基进行抗拔验算。单桩抗拔承载力特征值应通过单桩竖向抗拔载荷试验确定,并应加载至破坏。单桩竖向抗拔载荷试验,应按本规范附录T进行。
8.5.10 桩身混凝土强度应满足桩的承载力设计要求。
8.5.11 按桩身混凝土强度计算桩的承载力时,应按桩的类型和成桩工艺的不同将混凝土的轴心抗压强度设计值乘以工作条件系数φc,桩轴心受压时桩身强度应符合式(8.5.11)的规定。当桩顶以下5倍桩身直径范围内螺旋式箍筋间距不大于100mm且钢筋耐久性得到保证的灌注桩,可适当计入桩身纵向钢筋的抗压作用。
Q≤Apƒcφc (8.5.11)
式中:ƒc——混凝土轴心抗压强度设计值(kPa),按现行国家标准《混凝土结构设计规范》GB 50010取值;
Q——相应于作用的基本组合时的单桩竖向力设计值(kN);
Ap——桩身横截面积(m2);
φc——工作条件系数,非预应力预制桩取0.75,预应力桩取0.55~0.65,灌注桩取0.6~0.8(水下灌注桩、长桩或混凝土强度等级高于C35时用低值)。
8.5.12 非腐蚀环境中的抗拔桩应根据环境类别控制裂缝宽度满足设计要求,预应力混凝土管桩应按桩身裂缝控制等级为二级的要求进行桩身混凝土抗裂验算。腐蚀环境中的抗拔桩和受水平力或弯矩较大的桩应进行桩身混凝土抗裂验算,裂缝控制等级应为二级;预应力混凝土管桩裂缝控制等级应为一级。
8.5.13 桩基沉降计算应符合下列规定:
1 对以下建筑物的桩基应进行沉降验算;
1)地基基础设计等级为甲级的建筑物桩基;
2)体形复杂、荷载不均匀或桩端以下存在软弱土层的设计等级为乙级的建筑物桩基;
3)摩擦型桩基。
2 桩基沉降不得超过建筑物的沉降允许值,并应符合本规范表5.3.4的规定。
8.5.14 嵌岩桩、设计等级为丙级的建筑物桩基、对沉降无特殊要求的条形基础下不超过两排桩的桩基、吊车工作级别A5及A5以下的单层工业厂房且桩端下为密实土层的桩基,可不进行沉降验算。当有可靠地区经验时,对地质条件不复杂、荷载均匀、对沉降无特殊要求的端承型桩基也可不进行沉降验算。
8.5.15 计算桩基沉降时,最终沉降量宜按单向压缩分层总和法计算。地基内的应力分布宜采用各向同性均质线性变形体理论,按实体深基础方法或明德林应力公式方法进行计算,计算按本规范附录R进行。
8.5.16 以控制沉降为目的设置桩基时,应结合地区经验,并满足下列要求:
1 桩身强度应按桩顶荷载设计值验算;
2 桩、土荷载分配应按上部结构与地基共同作用分析确定;
3 桩端进入较好的土层,桩端平面处土层应满足下卧层承载力设计要求;
4 桩距可采用4倍~6倍桩身直径。
8.5.17 桩基承台的构造,除满足受冲切、受剪切、受弯承载力和上部结构的要求外,尚应符合下列要求:
1 承台的宽度不应小于500mm。边桩中心至承台边缘的距离不宜小于桩的直径或边长,且桩的外边缘至承台边缘的距离不小于150mm。对于条形承台梁,桩的外边缘至承台梁边缘的距离不小于75mm。
2 承台的最小厚度不应小于300mm。
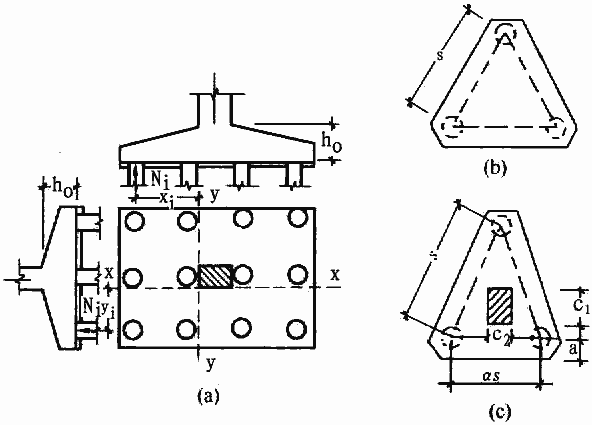
3 承台的配筋,对于矩形承台,其钢筋应按双向均匀通长布置(图8.5.17a),钢筋直径不宜小于10mm,间距不宜大于200mm;对于三桩承台,钢筋应按三向板带均匀布置,且最里面的三根钢筋围成的三角形应在柱截面范围内(图8.5.17b)。
承台梁的主筋除满足计算要求外,尚应符合现行国家标准《混凝土结构设计规范》GB 50010关于最小配筋率的规定,主筋直径不宜小于12mm,架立筋不宜小于10mm,箍筋直径不宜小于6mm(图8.5.17c);柱下独立桩基承台的最小配筋率不应小于0.15%。钢筋锚固长度自边桩内侧(当为圆桩时,应将其直径乘以0.886等效为方桩)算起,锚固长度不应小于35倍钢筋直径,当不满足时应将钢筋向上弯折,此时钢筋水平段的长度不应小于25倍钢筋直径,弯折段的长度不应小于10倍钢筋直径。
4 承台混凝土强度等级不应低于C20;纵向钢筋的混凝土保护层厚度不应小于70mm,当有混凝土垫层时,不应小于50mm;且不应小于桩头嵌入承台内的长度。

图8.5.17 承台配筋
1—墙;2—箍筋直径≥6mm;3—桩顶入承台≥50mm;4—承台梁内主筋除须按计算配筋外尚应满足最小配筋率;5—垫层100mm厚C10混凝土
8.5.18 柱下桩基承台的弯矩可按以下简化计算方法确定:
1 多桩矩形承台计算截面取在柱边和承台高度变化处(杯口外侧或台阶边缘,图8.5.18a):
Mx=ΣNiyi (8.5.18-1)
My=ΣNixi (8.5.18-2)
式中:Mx、My——分别为垂直y轴和x轴方向计算截面处的弯矩设计值(kN·m);
xi、yi——垂直y轴和x轴方向自桩轴线到相应计算截面的距离(m);
Ni——扣除承台和其上填土自重后相应于作用的基本组合时的第i桩竖向力设计值(kN)。
2 三桩承台
1)等边三桩承台(图8.5.18b)。

(8.5.18-3)
式中:M——由承台形心至承台边缘距离范围内板带的弯矩设计值(kN·m);
Nmax——扣除承台和其上填土自重后的三桩中相应于作用的基本组合时的最大单桩竖向力设计值(kN);
s——桩距(m);
c——方柱边长(m),圆柱时c=0.886d(d为圆柱直径)。
2)等腰三桩承台(图8.5.18c)。

图8.5.18 承台弯矩计算

式中:M1、M2——分别为由承台形心到承台两腰和底边的距离范围内板带的弯矩设计值(kN·m);
s——长向桩距(m);
α——短向桩距与长向桩距之比,当α小于0.5时,应按变截面的二桩承台设计;
c1、c2——分别为垂直于、平行于承台底边的柱截面边长(m)。
8.5.19 柱下桩基础独立承台受冲切承载力的计算,应符合下列规定:
1 柱对承台的冲切,可按下列公式计算(图8.5.19-1):
Fl≤2[αox(bc+aoy)+αoy(hc+aox)]βhpƒth0 (8.5.19-1)
Fl=F-ΣNi (8.5.19-2)
αox=0.84/(λox+0.2) (8.5.19-3)
αoy=0.84/(λoy+0.2) (8.5.19-4)
式中:Fl——扣除承台及其上填土自重,作用在冲切破坏锥体上相应于作用的基本组合时的冲切力设计值(kN),冲切破坏锥体应采用自柱边或承台变阶处至相应桩顶边缘连线构成的锥体,锥体与承台底面的夹角不小于45°(图8.5.19-1);
h0———冲切破坏锥体的有效高度(m);
βhp——受冲切承载力截面高度影响系数,其值按本规范第8.2.8条的规定取用;
αox、αoy——冲切系数;
λox、λoy——冲跨比,λox=aox/h0、λoy=aoy/h0,aox、aoy为柱边或变阶处至桩边的水平距离;当aox(aoy)<0.25h0时,aox(aoy)=0.25h0;当aox(aoy)>h0时,aox(aoy)=h0;
F——柱根部轴力设计值(kN);
∑Ni——冲切破坏锥体范围内各桩的净反力设计值之和(kN)。
对中低压缩性土上的承台,当承台与地基土之间没有脱空现象时,可根据地区经验适当减小柱下桩基础独立承台受冲切计算的承台厚度。

图8.5.19-1 柱对承台冲切
2 角桩对承台的冲切,可按下列公式计算:
1)多桩矩形承台受角桩冲切的承载力应按下列公式计算(图8.5.19-2):
Nl≤{α1x[c2+(a1y/2)]+α1y[c1+(a1x/2)]}βhpƒth0 (8.5.19-6)
α1x=0.56/(λ1x+0.2) (8.5.19-6)
α1y=0.56/(λ1y+0.2) (8.5.19-7)
式中:Nl——扣除承台和其上填土自重后的角桩桩顶相应于作用的基本组合时的竖向力设计值(kN);
α1x、α1y——角桩冲切系数;
λ1x、λ1y——角桩冲跨比,其值满足0.25~1.0,λ1x=a1x/h0,λ1y=a1y/h0;
c1、c2——从角桩内边缘至承台外边缘的距离(m);
a1x、a1y——从承台底角桩内边缘引45°冲切线与承台顶面或承台变阶处相交点至角桩内边缘的水平距离(m);
h0——承台外边缘的有效高度(m)。

图8.5.19-2 矩形承台角桩冲切验算
2)三桩三角形承台受角桩冲切的承载力可按下列公式计算(图8.5.19-3)。对圆柱及圆桩,计算时可将圆形截面换算成正方形截面。

图8.5.19-3 三角形承台角桩冲切验算

式中:λ11、λ12——角桩冲跨比,其值满足0.25~1.0,λ11=a11/h0,λ12=a12/h0;
a11、a12——从承台底角桩内边缘向相邻承台边引45°冲切线与承台顶面相交点至角桩内边缘的水平距离(m);当柱位于该45°线以内时则取柱边与桩内边缘连线为冲切锥体的锥线。
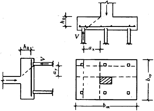
8.5.20 柱下桩基础独立承台应分别对柱边和桩边、变阶处和桩边连线形成的斜截面进行受剪计算。当柱边外有多排桩形成多个剪切斜截面时,尚应对每个斜截面进行验算。
8.5.21 柱下桩基独立承台斜截面受剪承载力可按下列公式进行计算(图8.5.21):

式中:V——扣除承台及其上填土自重后相应于作用的基本组合时的斜截面的最大剪力设计值(kN);
b0——承台计算截面处的计算宽度(m);阶梯形承台变阶处的计算宽度、锥形承台的计算宽度应按本规范附录U确定;
h0——计算宽度处的承台有效高度(m);
β——剪切系数;
βhs——受剪切承载力截面高度影响系数,按公式(8.2.9-2)计算;
λ——计算截面的剪跨比,λx=ax/h0,λy=ay/h0;ax、ay为柱边或承台变阶处至x、y方向计算一排桩的桩边的水平距离,当λ<0.25时,取λ=0.25;当λ>3时,取λ=3。

图8.5.21 承台斜截面受剪计算
8.5.22 当承台的混凝土强度等级低于柱或桩的混凝土强度等级时,尚应验算柱下或桩上承台的局部受压承载力。
8.5.23 承台之间的连接应符合下列要求:
1 单桩承台,应在两个互相垂直的方向上设置连系梁。
2 两桩承台,应在其短向设置连系梁。
3 有抗震要求的柱下独立承台,宜在两个主轴方向设置连系梁。
4 连系梁顶面宜与承台位于同一标高。连系梁的宽度不应小于250mm,梁的高度可取承台中心距的1/10~1/15,且不小于400mm。
5 连系梁的主筋应按计算要求确定。连系梁内上下纵向钢筋直径不应小于12mm且不应少于2根,并应按受拉要求锚入承台。